Сменить язык
Latviski
Регистрация
Войти
Войти на сайт
E-mail
Пароль:
Забыли пароль?
Войти
Регистрация
Главная
Товары
Услуги
Биржа
Компании
Публикации
Портфолио
Мероприятия
Проекты
B2B
Вакансии
предыдущий проект
следующий проект
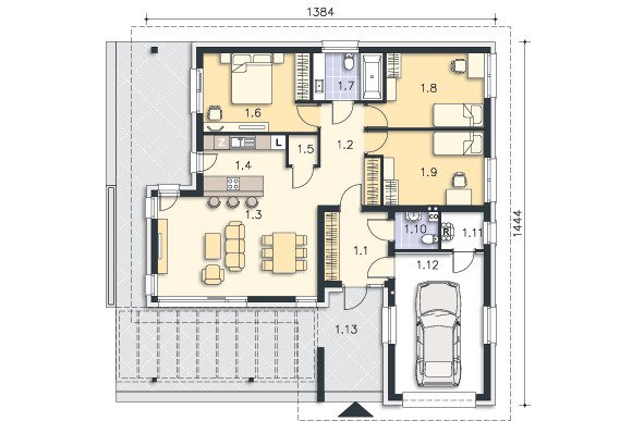
Проект дома EC 366
План первого этажа
1. Прихожая
6.96 m2
2. Холл
8.39 m2
3. Гостиная
24.98 m2
4. Кухня
9.48 m2
5. Подсобное помещение
1.34 m2
6. Спальня
13.54 m2
7. Ванная комната
5.23 m2
8. Жилая комната
12.20 m2
9. Жилая комната
12.40 m2
10. WC
2.56 m2
11. Техническое помещение
2.50 m2
12. Гараж
19.65 m2
13. Терраса
59.29 m2
Общая площадь этажа
178,52 m2
Помещения в проекте
Терраса
Открытая планировка кухни
Гардероб
Гараж
предыдущий проект
следующий проект
Предложения строительных компаний
Строительная компания
Цена строительства
Портфолио
Sebrumajas
Строительство каркасных домов
€
600
.00
/м
2
-
€
850
.00
/м
2
Посмотреть портфолио
Sebrumajas
Строительство из газобетонных блоков
€
800
.00
/м
2
-
€
1050
.00
/м
2
Посмотреть портфолио
Кредитный калькулятор
Цена
EUR
Срок
1
2
3
4
5
6
7
8
9
10
11
12
13
14
15
16
17
18
19
20
21
22
23
24
25
26
27
28
29
30
gadi
Процентная ставка
%
Первый взнос
%
Первый взнос
EUR
Сумма кредита
EUR
Ежемесячный платеж
EUR
Подать заявку на консультацию
Dzīvoklis sērijveida namā vai jaunajā projektā
Похожие проекты
Одноэтажные дома
€ 1650.00
Проект дома Astere
165.00
m
2
2
van. ist.
0
auto
3
guļ. ist.
Одноэтажные дома
€ 1980.00
Проект дома Astere 2
198.00
m
2
2
van. ist.
1
auto
3
guļ. ist.
Одноэтажные дома
€ 2140.00
Проект дома Astere 3
214.00
m
2
2
van. ist.
2
auto
3
guļ. ist.
Показать еще
Кредитный калькулятор
Цена:
€
Срок:
1 gadi
2 gadi
3 gadi
4 gadi
5 gadi
6 gadi
7 gadi
8 gadi
9 gadi
10 gadi
11 gadi
12 gadi
13 gadi
14 gadi
15 gadi
16 gadi
17 gadi
18 gadi
19 gadi
20 gadi
21 gadi
22 gadi
23 gadi
24 gadi
25 gadi
26 gadi
27 gadi
28 gadi
29 gadi
30 gadi
Рассчитать
Dzīvoklis sērijveida namā vai jaunajā projektā
Galvenie nosacījumi mājokļa kredītam
Seši soļi līdz jaunai mājai