Mainīt valodu
На русском
Reģistrācija
Ieiet
Ieiet
E-pasts
Parole:
Aizmirsāt paroli?
Ieiet
Reģistrācija
Galvenā
Preces
Pakalpojumi
Birža
Kompānijas
Publikācijas
Portfolio
Pasākumi
Projekti
B2B
Vakances
iepriekšējais projekts
nākamais projekts
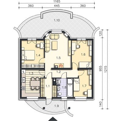
Māju projekts LMB 65
Pirmā stāva plāns
1. Priekštelpa
6,4 m2
2. Halle
6,7 m2
3. Virtuve
12,8 m2
4. Guļamistaba
14,8 m2
5. Viesistaba
20,6 m2
6. Dzīvojamā istaba
13,1 m2
7. Dzīvojamā istaba
10,8 m2
8. Vannas istaba
7,1 m2
9. Lievenis
7,4 m2
10. Terase
30,5 m2
Stāva kopējā platība
125 m2
Telpas projektā
Slīps jumts
Terase
Kamīns
Garderobe
iepriekšējais projekts
nākamais projekts
Būvniecības kompāniju piedāvājumi
Būvniecības kompānija
Būvniecības cena
Portfolio
Sebrumajas
Karkasa māju būvniecība
€
600
.00
/m
2
-
€
850
.00
/m
2
Apskatīt portfolio
Sebrumajas
Gāzbetona bloku būvniecība
€
800
.00
/m
2
-
€
1050
.00
/m
2
Apskatīt portfolio
Kredīta kalkulators
Cena
EUR
Termiņš
1
2
3
4
5
6
7
8
9
10
11
12
13
14
15
16
17
18
19
20
21
22
23
24
25
26
27
28
29
30
gadi
Procentu likme
%
Pirmā iemaksa
%
Pirmā iemaksa
EUR
Kredīta summa
EUR
Mēneša maksājums
EUR
Pieteikties konsultācijai
Dzīvoklis sērijveida namā vai jaunajā projektā
Līdzīgie projekti
Vienstāvu māja
€ 1430.00
Māju projekts DCB 107a
143.43
m
2
1
van. ist.
2
auto
2
guļ. ist.
Vienstāvu māja
€ 1320.00
Māju projekts LMB 101
132.00
m
2
1
van. ist.
0
auto
2
guļ. ist.
Vienstāvu māja
€ 1230.00
Māju projekts LMB 74
123.00
m
2
2
van. ist.
0
auto
2
guļ. ist.
Parādīt vēl
Kredīta kalkulators
Cena:
€
Termiņš:
1 gadi
2 gadi
3 gadi
4 gadi
5 gadi
6 gadi
7 gadi
8 gadi
9 gadi
10 gadi
11 gadi
12 gadi
13 gadi
14 gadi
15 gadi
16 gadi
17 gadi
18 gadi
19 gadi
20 gadi
21 gadi
22 gadi
23 gadi
24 gadi
25 gadi
26 gadi
27 gadi
28 gadi
29 gadi
30 gadi
Aprēķināt
Dzīvoklis sērijveida namā vai jaunajā projektā
Galvenie nosacījumi mājokļa kredītam
Seši soļi līdz jaunai mājai