
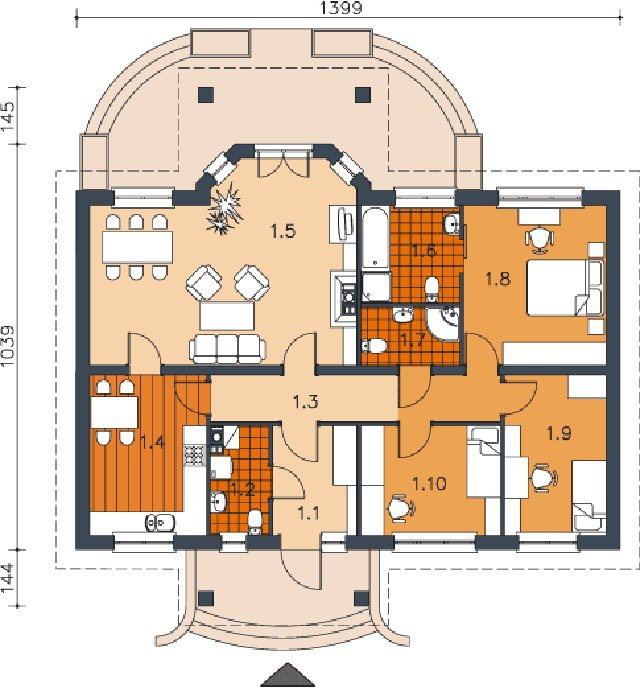
Bagātīgs detalizējums un daudzveidīgs plāns padara šo māju ļoti pievilcīgu. Tas ir piedāvājums četru cilvēku ģimenēm, kuras vēlas apmesties klusā vietā ārpus pilsētas. Māja ļoti nepiespiesti iekļaujas apkārtnes ainavā un zaļumos iekļauta –lieliski izskatās. Liela dienas daļa, kas sastāv no istabas, atvērtas virtuves un komunikācijas daļas, kura ar dārza terasi ir savienota ar daļēji apjumtām mājas sienām – tas ir ģimenes dzīves centrs. Šo platību pievilcīgāku papildus padara kamīns. Bez tam mājā paredzētas trīs guļamistabas, vannas istaba ar vannu un dušu, bet pie ieejas zonas izvietotas: garderobe, tualete un veļas mazgātava ar katlu telpu. Automašīnas novietošanai paredzēta nojume, kura ir lokalizēta mājas priekšpusē. Tas ļauj minimalizēt šai mājai paredzētās apbūves gabala platumu un vienlaicīgi bagātina tās arhitektonisko formu.