Mainīt valodu
На русском
Reģistrācija
Ieiet
Ieiet
E-pasts
Parole:
Aizmirsāt paroli?
Ieiet
Reģistrācija
Galvenā
Preces
Pakalpojumi
Birža
Kompānijas
Publikācijas
Portfolio
Pasākumi
Projekti
B2B
Vakances
iepriekšējais projekts
nākamais projekts
Māju projekts DCP 314
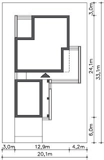
Pirmā stāva plāns
Otrā stāva plāns
1. Priekštelpa
3.30 m2
2. Halle
10.01 m2
3. Vannas istaba
2.66 m2
4. Vannas istaba
2.81 m2
5. Dzīvojamā istaba
26.22 m2
6. Dzīvojamā istaba
16.02 m2
7. Viesistaba
29.98 m2
8. Palīgtelpa
1.86 m2
9. Virtuve
14.10 m2
10. Garāža
41.73 m2
11. Terase
13.55 m2
12. Terase
40.16 m2
13. Terase
14.83 m2
14. Terase
3.70 m2
Stāva kopējā platība
220,93 m2
1. Halle
6.53 m2
2. Dzīvojamā istaba
19.33 m2
3. Dzīvojamā istaba
19.33 m2
4. Garderobe
3.90 m2
5. Dzīvojamā istaba
18.38 m2
6. Vannas istaba
9.00 m2
7. Vannas istaba
5.22 m2
8. Palīgtelpa
3.45 m2
9. Kāpnes
4.12 m2
Stāva kopējā platība
89,26 m2
Telpas projektā
Slīps jumts
Palīgtelpa
Terase
Veļas mazgāšanas pakalpojumi
Garderobe
Garāža
Mansards
iepriekšējais projekts
nākamais projekts
Būvniecības kompāniju piedāvājumi
Būvniecības kompānija
Būvniecības cena
Portfolio
Sebrumajas
Karkasa māju būvniecība
€
600
.00
/m
2
-
€
850
.00
/m
2
Apskatīt portfolio
Sebrumajas
Gāzbetona bloku būvniecība
€
800
.00
/m
2
-
€
1050
.00
/m
2
Apskatīt portfolio
Kredīta kalkulators
Cena
EUR
Termiņš
1
2
3
4
5
6
7
8
9
10
11
12
13
14
15
16
17
18
19
20
21
22
23
24
25
26
27
28
29
30
gadi
Procentu likme
%
Pirmā iemaksa
%
Pirmā iemaksa
EUR
Kredīta summa
EUR
Mēneša maksājums
EUR
Pieteikties konsultācijai
Dzīvoklis sērijveida namā vai jaunajā projektā
Līdzīgie projekti
Divstāvu māja
€ 2215.30
Māju projekts C 264
221.53
m
2
3
van. ist.
1
auto
4
guļ. ist.
Divstāvu māja
€ 1623.00
Māju projekts Belfāsta DCP 268f
162.30
m
2
3
van. ist.
2
auto
3
guļ. ist.
Divstāvu māja
€ 1923.00
Māju projekts Belfāsta DCP 268
192.30
m
2
2
van. ist.
2
auto
4
guļ. ist.
Parādīt vēl
Kredīta kalkulators
Cena:
€
Termiņš:
1 gadi
2 gadi
3 gadi
4 gadi
5 gadi
6 gadi
7 gadi
8 gadi
9 gadi
10 gadi
11 gadi
12 gadi
13 gadi
14 gadi
15 gadi
16 gadi
17 gadi
18 gadi
19 gadi
20 gadi
21 gadi
22 gadi
23 gadi
24 gadi
25 gadi
26 gadi
27 gadi
28 gadi
29 gadi
30 gadi
Aprēķināt
Dzīvoklis sērijveida namā vai jaunajā projektā
Galvenie nosacījumi mājokļa kredītam
Seši soļi līdz jaunai mājai