Mainīt valodu
На русском
Reģistrācija
Ieiet
Ieiet
E-pasts
Parole:
Aizmirsāt paroli?
Ieiet
Reģistrācija
Galvenā
Preces
Pakalpojumi
Birža
Kompānijas
Publikācijas
Portfolio
Pasākumi
Projekti
B2B
Vakances
nākamais projekts
Māju projekts DCBL 23
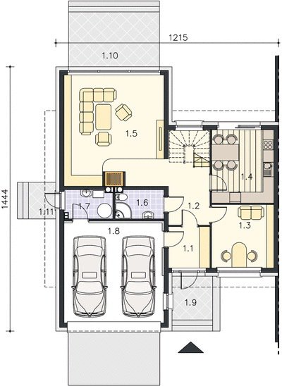
Pirmā stāva plāns
Otrā stāva plāns
1. Priekštelpa
5.1 m2
2. Halle
11.7 m2
3. Kabinets
11.7 m2
4. Virtuve
13.5 m2
5. Viesistaba
33.0 m2
6. Vannas istaba
4.1 m2
7. Katklu telpa
4.0 m2
8. Garāža
29.4 m2
9. Lievenis
6.5 m2
10. Terase
16.7 m2
11. Lievenis
1.9 m2
Stāva kopējā platība
137,6 m2
1. Kāpnes
3.4 m2
2. Halle
7.6 m2
3. Dzīvojamā istaba
12.4 m2
4. Guļamistaba
12.4 m2
5. Vannas istaba
5.8 m2
6. Dzīvojamā istaba
13.2 m2
7. Vannas istaba
4.4 m2
8. Garderobe
4.7 m2
9. Guļamistaba
16.7 m2
10. Terase
14.8 m2
Stāva kopējā platība
95,4 m2
Telpas projektā
Slīps jumts
Saimniecības telpa
Katlu telpa
Pieliekamais
Garderobe
Garāža
nākamais projekts
Būvniecības kompāniju piedāvājumi
Būvniecības kompānija
Būvniecības cena
Portfolio
Sebrumajas
Karkasa māju būvniecība
€
600
.00
/m
2
-
€
850
.00
/m
2
Apskatīt portfolio
Sebrumajas
Gāzbetona bloku būvniecība
€
800
.00
/m
2
-
€
1050
.00
/m
2
Apskatīt portfolio
Kredīta kalkulators
Cena
EUR
Termiņš
1
2
3
4
5
6
7
8
9
10
11
12
13
14
15
16
17
18
19
20
21
22
23
24
25
26
27
28
29
30
gadi
Procentu likme
%
Pirmā iemaksa
%
Pirmā iemaksa
EUR
Kredīta summa
EUR
Mēneša maksājums
EUR
Pieteikties konsultācijai
Dzīvoklis sērijveida namā vai jaunajā projektā
Līdzīgie projekti
Dvīņu mājas
€ 1090.00
Māju projekts LMBL 03
109.00
m
2
2
van. ist.
1
auto
3
guļ. ist.
Dvīņu mājas
€ 1140.00
Māju projekts LMBL 46
114.18
m
2
2
van. ist.
0
auto
3
guļ. ist.
Dvīņu mājas
€ 2330.00
Māju projekts DCBL 23
233.00
m
2
3
van. ist.
2
auto
4
guļ. ist.
Parādīt vēl
Kredīta kalkulators
Cena:
€
Termiņš:
1 gadi
2 gadi
3 gadi
4 gadi
5 gadi
6 gadi
7 gadi
8 gadi
9 gadi
10 gadi
11 gadi
12 gadi
13 gadi
14 gadi
15 gadi
16 gadi
17 gadi
18 gadi
19 gadi
20 gadi
21 gadi
22 gadi
23 gadi
24 gadi
25 gadi
26 gadi
27 gadi
28 gadi
29 gadi
30 gadi
Aprēķināt
Dzīvoklis sērijveida namā vai jaunajā projektā
Galvenie nosacījumi mājokļa kredītam
Seši soļi līdz jaunai mājai