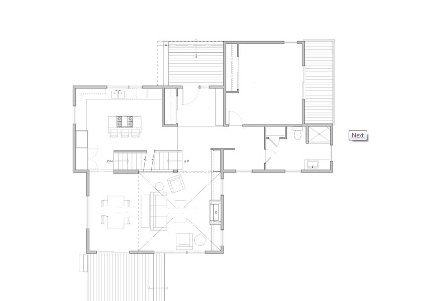
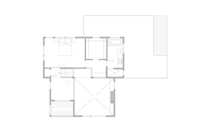
MĀJU PROJEKTI: Plaša divstāvu  māja. Kopējā platība 255 м2 2. stāvu mājas

MĀJU PROJEKTI: Plaša divstāvu māja. Kopējā platība 255 м2

Otrdiena, 15 augustā, 2017
Sandra Fomina @nadja
žurnāliste
7 gadu 9 mēnešu 24 dienas portālā
Bija online 26 novembrī 00:15
Meklētājs būvniecības nozarē

Pakalpojumu atlase pēc tēmas